ID CP2026465

Predare Noiembrie 2026/Achitare Flexibila/Utilitati/Asfalt

ID CP2026465

320,000 € (negociabil) TVA inclus

Casă / Vilă cu 5 camere de vânzare
Stupini, Brasov
140 mp
2026

Vă propunem spre vînzare un proiect unic,format din 11 case single in cartierul Stupini (str.Izvorului), aflat in constructie cu predarea estimata in luna Noiembrie 2026.

Atentie !!! Pretul include TVA 21 %

Dezvoltarorul percepe achitare esalonata pe etape, cum ar fi :

25 % la semnarea antecontractului.

35% la inceperea lucrarilor interioare si exterioare.

40 % la intabulare ( se ia in calcul si varianta de credit ipotecar).

Detalii generale :

- Suprafata teren: 450 mp.

-Suptrafata construita 165 mp.

-Suprafata Utila 140 mp.

Compartimentat în:

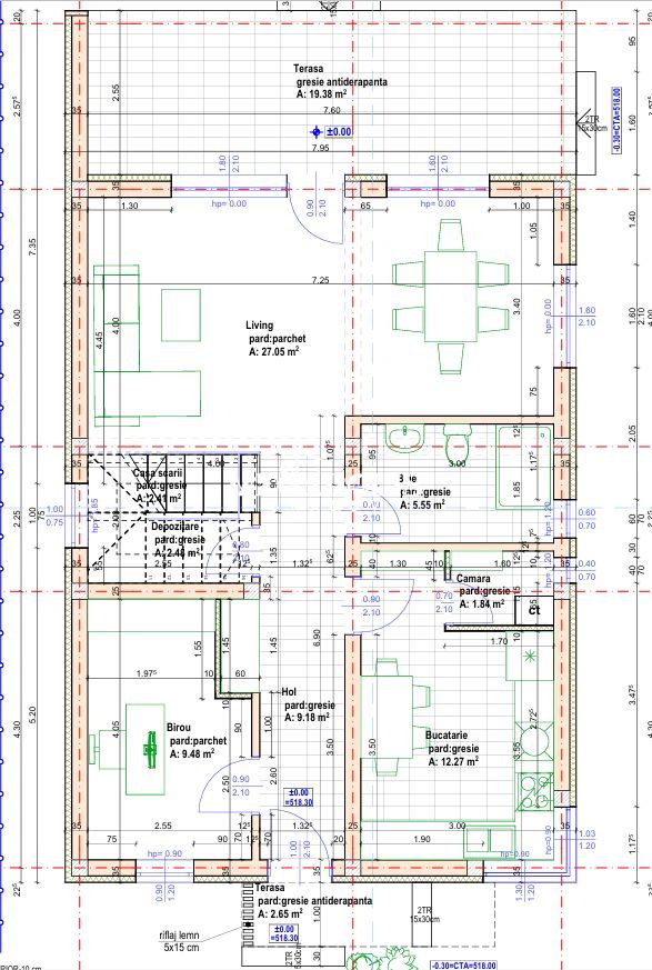
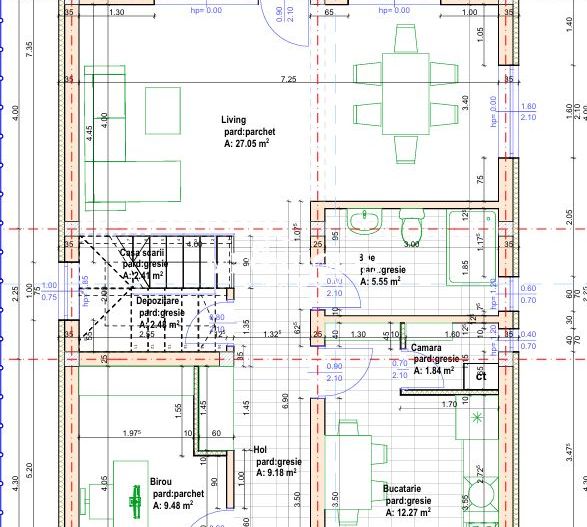
Parter :

- Antreu, birou ( care poate fi folosit ca si dressing, sau camera tehnica) ,bucatarie de tip inchis cu camara , baie de servici,zona de dining si living. Din living avem acces catre terasa din spatele casei cu o suprafata de 27mp.

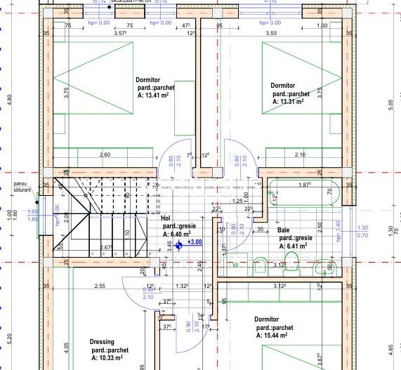
Etaj :

- 3 dormitoare , dintr-e care unul dispune de dressing propriu si balcon.

- o baie de servici, si acces in podul casei care poate fi folosit ca spatiu de depozitare.

Din dotari :

- Casa se preda la cheie cu finisaje incluse in pret ( posibilitate sa va personalizati interiorul )

-Pompa de caldura Aer-Apa

-Panouri fotovoltice de 8 KW

-Curte pavata si amenajata cu gazon.

- Incalzire in pardoseala parter si etaj.

- Acoperisul din tigla ceramica.

-Izolatie exterioara vata bazaltica de 10 cm.

-Utilitati : Gaz, Curent,Apa , Canalizare, Fibra Optica

- Drum asfaltat

În imediată apropiere de: parc, grădinița, școală, statie RATBV.

Pentru mai multe detalii cat si pentru a programa o vizionare nu ezitati sa ma contactati.

Citește mai mult

  • Număr camere
    5
  • Dormitoare
    3
  • Număr bucătării
    1
  • Număr băi
    2
  • Geam la baie
    Da
  • Număr balcoane
    1
  • Număr locuri parcare
    2
  • Disponibilitate
    Imediat
  • Tip casă
    Individual
  • Stare interior
    Ultrafinisat
  • Anul finisării
    2026
  • Suprafață utilă
    140 mp
  • Suprafață construită
    165 mp
  • Suprafață construită la sol (Amprentă)
    110.0 mp
  • Suprafață teren
    470 mp
  • Suprafață curte
    360 mp
  • Suprafață curte liberă
    360 mp
  • Suprafață terasă
    27 mp
  • Deschidere
    18 m
  • Acoperiș
    Țiglă
  • Stadiu construcție
    În construcție
  • An construcție
    2026
  • Construcție nouă
    Da
  • Tip construcție
    Cărămidă
  • Număr etaje clădire
    1
  • Număr etaje retrase
    1
  • Are pod
    Da

Facilități

Apă
Canalizare
CATV
Curent
Gaz
Iluminat stradal
Internet
Mijloace de transport în comun
Străzi asfaltate
Telefon
Bolotovici Alexandru - MEGAPOLIS Braşov
Bolotovici Alexandru
Manager

0727101109


Solicită chiar acum o vizionare
Nume
Telefon
Email
Sună acum Solicită vizionare
Necesare:

Site-ul nu poate funcționa corect fără aceste cookie-uri. Vezi cookie-urile

Statistică:

Strângem statistici anonime despre voi, vizitatorii unici, pentru a vă îmbunătăți experiența dumneavoastră. Vezi cookie-urile

Marketing:

Pentru a ne promova mai eficient serviciile noastre, folosim cookies pentru a vă identifica și a vă oferi proprietăți și servicii personalizate. Vezi cookie-urile

Acest site folosește cookies, află detalii. Alege ce tipuri de cookies dorești să permitem: