ID CP2432608

Direct Dezvoltator | Predare Aprilie 2025 | Utilitǎți | TVA Inclus

ID CP2432608

235,000 € (negociabil) TVA inclus

Casă / Vilă cu 4 camere de vânzare
Sanpetru
115 mp
2025

Casă tip duplex de vânzare în Hărman, Brașov – proiect nou, direct de la dezvoltator

Vă propunem spre vânzare o casă tip duplex, parte dintr-un proiect rezidențial nou în Hărman, la doar câțiva kilometri de Brașov.

Atentie !!! Pretul include TVA 21 %.

Achiziție direct de la dezvoltator – plată flexibilă.

Se acceptă credit ipotecar cu un avans de 20%.

Termen estimativ de finalizare: Aprilie 2026.

Detalii proprietate:

- Suprafață teren: 325 mp sau 375 mp)

- Suprafață construită: 140 mp

- Suprafață utilă: 115 mp

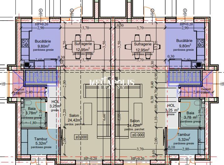
Compartimentare:

- Parter: antreu, dressing, bucătărie, spațiu de depozitare sub scară, zonă de dining și living cu acces pe terasă.

- Etaj: 3 dormitoare (2 cu balcon), dressing, baie de serviciu.

Dotări și finisaje:

- Casă predată la cheie, cu finisaje incluse în preț

- Posibilitate de personalizare a interiorului

- Încălzire în pardoseală la parter și etaj

- Acoperiș cu placă de beton și izolație

- Porți automate cu deschidere prin telecomandă

- Balustrade din sticlă securizată la terase

Utilități:

Gaz, curent electric, apă, canalizare, fibră optică

Pentru mai multe detalii și programări la vizionare:

Alexandru Bolotovici – 0727 101 109

Citește mai mult

  • Număr camere
    4
  • Dormitoare
    3
  • Număr bucătării
    1
  • Număr băi
    2
  • Geam la baie
    Da
  • Număr balcoane
    2
  • Număr locuri parcare
    2
  • Disponibilitate
    Imediat
  • Tip casă
    Duplex
  • Stare interior
    Ultrafinisat
  • Anul finisării
    2025
  • Suprafață utilă
    115 mp
  • Suprafață construită
    140 mp
  • Suprafață construită la sol (Amprentă)
    75.0 mp
  • Suprafață teren
    325 mp
  • Suprafață curte
    250 mp
  • Suprafață curte liberă
    250 mp
  • Suprafață terasă
    15 mp
  • Stadiu construcție
    În construcție
  • An construcție
    2025
  • Construcție nouă
    Da
  • Tip construcție
    Cărămidă
  • Număr etaje clădire
    1

Facilități

Apă
Canalizare
CATV
Curent
Gaz
Iluminat stradal
Internet
Mijloace de transport în comun
Străzi asfaltate
Telefon
Bolotovici Alexandru - MEGAPOLIS Braşov
Bolotovici Alexandru
Manager

0727101109


Solicită chiar acum o vizionare
Nume
Telefon
Email
Sună acum Solicită vizionare
Necesare:

Site-ul nu poate funcționa corect fără aceste cookie-uri. Vezi cookie-urile

Statistică:

Strângem statistici anonime despre voi, vizitatorii unici, pentru a vă îmbunătăți experiența dumneavoastră. Vezi cookie-urile

Marketing:

Pentru a ne promova mai eficient serviciile noastre, folosim cookies pentru a vă identifica și a vă oferi proprietăți și servicii personalizate. Vezi cookie-urile

Acest site folosește cookies, află detalii. Alege ce tipuri de cookies dorești să permitem: