ID CP2370961

REZERVATĂ ! Bloc Intabulat/Se Accepta Credit/Incalzire in Pardoseala

Această proprietate nu mai este activă,
te invităm să vizualizezi proprietăți similare

ID CP2370961

99,500 € TVA inclus

Apartament cu 1 camere de vânzare
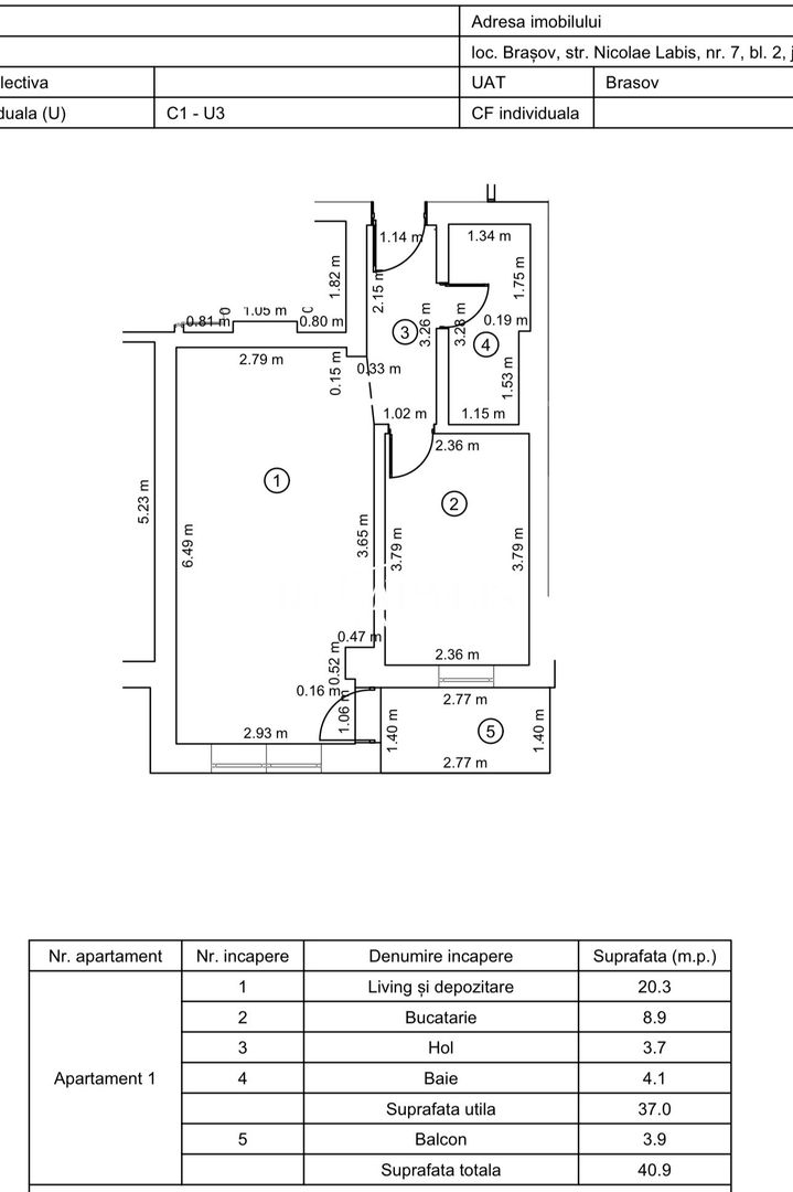
Tractorul, Brasov
37 mp
2025

Vă propunem spre vânzare un apartament de tip garsonieră, situat în cartierul Tractorul, pe strada Nicolae Labiș nr. 7. Suprafața utilă este de 37 mp, iar balconul are 3,9 mp.

Atenție: Prețul include TVA. Se acceptă și plata prin credit bancar, cu un avans minim de 15%!

Blocul este intabulat, ceea ce permite achiziționarea prin credit bancar.

Parcarea se poate achiziționa separat, contra sumei de 8.000 euro.

Detalii generale:

- Bloc cu ascensor

- Încălzire în pardoseală

- Apartamentul se predă cu finisaje de înaltă calitate, inclusiv baia dotată cu obiecte sanitare

- Geamuri cu 3 foi de sticlă, 7 camere

- Izolație exterioară cu polistiren de 10 cm

Contact: 0727 101 109 - Alexandru Bolotovici

Citește mai mult

  • Tip apartament
    Apartament
  • Compartimentare
    Decomandat
  • Număr camere
    1
  • Dormitoare
    1
  • Număr bucătării
    1
  • Număr băi
    1
  • Etaj
    2
  • Suprafață utilă
    37 mp
  • Suprafață construită
    40.9 mp
  • Suprafață totală
    40.9 mp
  • Disponibilitate
    Imediat
  • Orientare
    Sud
  • Confort
    Lux
  • Stare interior
    Ultrafinisat
  • Anul finisării
    2025
  • Număr balcoane
    1
  • Imobil
    Bloc de apart.
  • An construcție
    2025
  • Construcție nouă
    Da
  • Tip construcție
    Cărămidă
  • Număr etaje clădire
    2
  • Număr etaje retrase
    1

Facilități

Apă
Canalizare
CATV
Curent
Gaz
Iluminat stradal
Internet
Mijloace de transport în comun
Străzi asfaltate
Telefon
Necesare:

Site-ul nu poate funcționa corect fără aceste cookie-uri. Vezi cookie-urile

Statistică:

Strângem statistici anonime despre voi, vizitatorii unici, pentru a vă îmbunătăți experiența dumneavoastră. Vezi cookie-urile

Marketing:

Pentru a ne promova mai eficient serviciile noastre, folosim cookies pentru a vă identifica și a vă oferi proprietăți și servicii personalizate. Vezi cookie-urile

Acest site folosește cookies, află detalii. Alege ce tipuri de cookies dorești să permitem: