ID CP2876294

Penthouse Premium | Zona Răcădău | 213 MP

ID CP2876294

591,810 € + 21% TVA

Apartament cu 4 camere de vânzare
Racadau, Brasov
212.92 mp
2026

Descoperă un penthouse spectaculos cu 4 camere amplasat pe 2 nivele, un proiect emblematic ce îmbină arhitectura modernă cu un stil de viață urban exclusivist. Locuința este amplasată la etajul 11-12, beneficiind de priveliști deschise, lumină naturală din abundență și o terasă generoasă, ideală pentru relaxare și socializare.

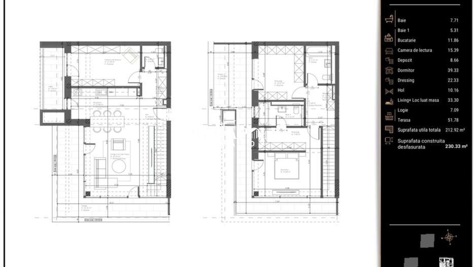
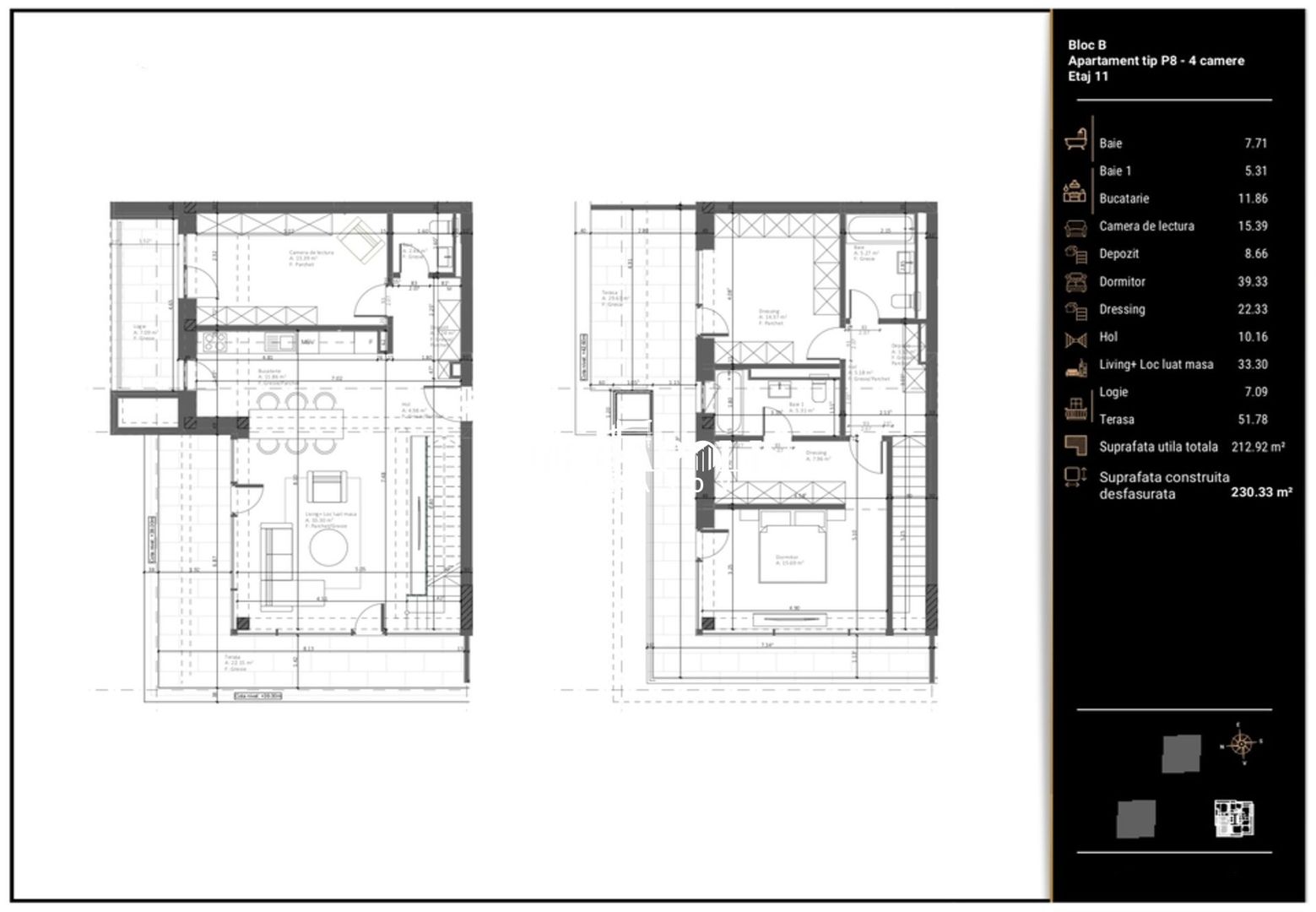
Suprafață utilă totală: 212,92 mp

Suprafață construită desfășurată: 230,33 mp

Terasă: 51,78 mp

Etaj: 11-12

Tip apartament: Penthouse – 4 camere

Compartimentare conform plan:

• Living + loc de luat masa: 33,30 mp – spațiu amplu, cu acces direct către terasă

• Dormitor matrimonial: 39,33 mp, cu dressing dedicat de 22,33 mp

• Cameră de lectură / dormitor: 15,39 mp

• Bucătărie separată: 11,86 mp

• Baie: 7,71 mp

• Baie secundară: 5,31 mp

• Hol: 10,16 mp

• Depozit: 8,66 mp

• Logie: 7,09 mp

• Terasă panoramică: 51,78 mp – un adevărat atu al proprietății

Această tipologie oferă un nivel ridicat de intimitate, spații bine delimitate și o compartimentare ideală pentru o familie sau pentru cei care își doresc un stil de viață premium, la înălțime.

Locuri de parcare disponibile:

• Parcare subterană: 25.000 EUR + TVA

• Boxă: 2.500 EUR + TVA

Dotări premium ale ansamblului:

• Parcări subterane și supraterane

• Izolație exterioară cu vată bazaltică

• Încălzire în pardoseală în întreg apartamentul

• Acces securizat și supraveghere video

• Spații verzi amenajate și zone de relaxare

• Spații comerciale la parter (supermarket, farmacie, salon)

• Videointerfon smart cloud

• Iluminat inteligent în spațiile comune

• Stații de încărcare pentru mașini electrice

• Ecopubele subterane și colectare selectivă

• Rampe de acces pentru persoane cu dizabilități și cărucioare

📞 Pentru detalii și vizionări:

0727 101 106 – Cojocari Dumitru

Citește mai mult

  • Tip apartament
    Penthouse
  • Compartimentare
    Decomandat
  • Număr camere
    4
  • Dormitoare
    2
  • Număr bucătării
    1
  • Număr băi
    2
  • Etaj
    11, 12
  • Suprafață utilă
    212.92 mp
  • Suprafață construită
    230.33 mp
  • Disponibilitate
    Imediat
  • Orientare
    Nord-Vest
  • Confort
    Lux
  • Stare interior
    Ultrafinisat
  • Anul finisării
    2026
  • Număr balcoane
    1
  • Număr terase
    1
  • Imobil
    Bloc de apart.
  • Stadiu construcție
    Finalizată
  • An construcție
    2026
  • Construcție nouă
    Da
  • Număr etaje clădire
    12

Facilități

Apă
Canalizare
CATV
Curent
Gaz
Iluminat stradal
Internet
Mijloace de transport în comun
Străzi asfaltate
Telefon
Vedere panoramică
Vedere spre munte
Vedere spre oraș
Dumitru Cojocari - MEGAPOLIS Braşov
Dumitru Cojocari
Real Estate Agent

0727101106


Solicită chiar acum o vizionare
Nume
Telefon
Email
Sună acum Solicită vizionare
Necesare:

Site-ul nu poate funcționa corect fără aceste cookie-uri. Vezi cookie-urile

Statistică:

Strângem statistici anonime despre voi, vizitatorii unici, pentru a vă îmbunătăți experiența dumneavoastră. Vezi cookie-urile

Marketing:

Pentru a ne promova mai eficient serviciile noastre, folosim cookies pentru a vă identifica și a vă oferi proprietăți și servicii personalizate. Vezi cookie-urile

Acest site folosește cookies, află detalii. Alege ce tipuri de cookies dorești să permitem: