ID CP2876377

Penthouse Premium | Zona Astra | 160 mp

ID CP2876377

528,000 € + 21% TVA

Apartament cu 4 camere de vânzare
Astra, Brasov
160 mp
2025

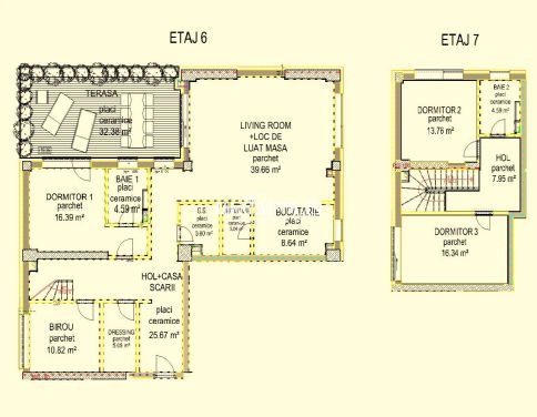
Penthouse cu 4 camere pe 2 nivele situat pe str. Poienelor 12 într-un bloc locativ cu regim de inălțime 2S+P+7E ce va oferi standarde ridicate de calitate și siguranță. Beneficiind de priveliști deschise, lumină naturală din abundență și o terasă generoasă, ideală pentru relaxare și socializare.

Suprafață utilă totală: 160,03 mp

Suprafață construită desfășurată: 192,38 mp

Terasă: 32,38 mp

Etaj: 6

Tip apartament: Penthouse – 4 camere

Compartimentare conform plan:

• Living: 39,66 mp – spațiu amplu, cu acces direct către terasă

• Dormitor matrimonial: 16,39 mp, cu baie proprie

• Dormitor 2: 16,34 mp

• Dormitor 3: 13,76 mp

• Bucătărie: 8,64 mp cu depozit 3,04 mp

• Baie 1: 4,59 mp

• Baie secundară: 4,59 mp

• Hol: 25,67 mp

• Terasă panoramică: 32,38 mp

Această tipologie oferă un nivel ridicat de intimitate, spații bine delimitate și o compartimentare ideală pentru o familie sau pentru cei care își doresc un stil de viață premium, la înălțime.

Locuri de parcare disponibile:

• Parcare subterană simplă: 20.000 EUR + TVA

• Parcare subterană dublă: 30.000 EUR + TVA

Dotări premium:

• Parcări subterane și supraterane

• Izolație exterioară cu vată bazaltică

• Zidăria executată din blocuri ceramice de tip Acoustic

• Încălzire în pardoseală în întreg apartamentul

• Acces securizat și supraveghere video

• Spații verzi amenajate și zone de relaxare

• Fațadă combinată – ventilată și termoizolată

• Videointerfon smart cloud

• Iluminat inteligent în spațiile comune

• Ventilație cu recuperare de căldură

• Rulouri exterioare electrice la toate geamurile

📞 Pentru detalii și vizionări:

0727 101 106 – Cojocari Dumitru

Citește mai mult

  • Tip apartament
    Penthouse
  • Compartimentare
    Decomandat
  • Număr camere
    4
  • Dormitoare
    3
  • Număr bucătării
    1
  • Număr băi
    2
  • Geam la baie
    Da
  • Etaj
    6, 7
  • Suprafață utilă
    160 mp
  • Suprafață construită
    192.38 mp
  • Suprafață terasă
    32.38 mp
  • Disponibilitate
    Imediat
  • Orientare
    Vest
  • Confort
    Lux
  • Stare interior
    Ultrafinisat
  • Anul finisării
    2025
  • Număr terase
    1
  • Imobil
    Bloc de apart.
  • Stadiu construcție
    Finalizată
  • An construcție
    2025
  • Construcție nouă
    Da
  • Tip construcție
    Cărămidă
  • Număr etaje clădire
    7
  • Număr subsoluri
    2

Facilități

Apă
Canalizare
CATV
Curent
Gaz
Iluminat stradal
Internet
Mijloace de transport în comun
Străzi asfaltate
Telefon
Dumitru Cojocari - MEGAPOLIS Braşov
Dumitru Cojocari
Real Estate Agent

0727101106


Solicită chiar acum o vizionare
Nume
Telefon
Email
Sună acum Solicită vizionare
Necesare:

Site-ul nu poate funcționa corect fără aceste cookie-uri. Vezi cookie-urile

Statistică:

Strângem statistici anonime despre voi, vizitatorii unici, pentru a vă îmbunătăți experiența dumneavoastră. Vezi cookie-urile

Marketing:

Pentru a ne promova mai eficient serviciile noastre, folosim cookies pentru a vă identifica și a vă oferi proprietăți și servicii personalizate. Vezi cookie-urile

Acest site folosește cookies, află detalii. Alege ce tipuri de cookies dorești să permitem: