ID CP2685632

Apartament cu 2 camere | Noua | 68 mp Utili

ID CP2685632

165,506 € + 21% TVA

Apartament cu 2 camere de vânzare
Calea Bucuresti, Brasov
67.73 mp
2026

Apartament cu 2 camere de vânzare – Brașov, Zona Noua/Dârste

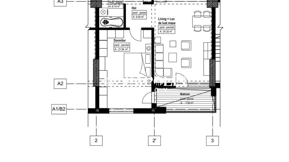
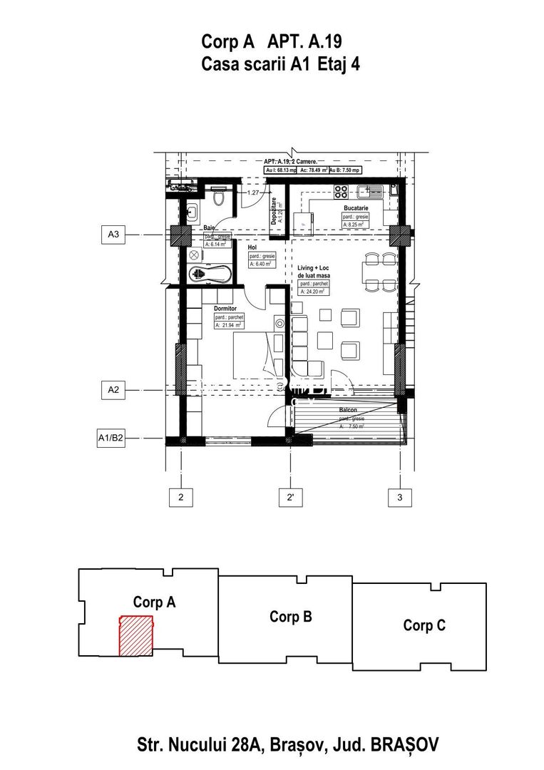
Detalii apartament:

- Suprafață utilă: 67.73 mp

- Suprafață construită: 78.49 mp

- Etaj: 2 din 8

Compartimentare: semidecomandat

- Hol – 6,50 mp

-Baie – 6,14 mp

- Bucătărie – 8,25 mp

- Living – 24,13 mp

- Dormitor – 21,94 mp

- Balcon – 7,50 mp

Termen de predare: Decembrie 2026

Preț: 150.460 € + 21% TVA

Loc de parcare subteran:

- Loc simplu Preț: 15.000 € + TVA

- Loc dublu Preț: 30.000 € + TVA

Sunt disponibile şi locuri de parcare cu priză pentru automobile electrice.

Modalități de plată:

- Plata integrală, cu avans de 70% și diferența la intabulare

- Plata în 3 tranșe: avans de 30%, 40% la mijlocul construcției și 30% la predare

- Plata prin credit bancar, cu avans de 30%

- Modalitate de plată personalizată, stabilită în funcție de avans

📍 Calea București

🏡 141 de apartamente

🌿 54% din suprafață dedicată spațiilor verzi

🏔️ 50% dintre apartamente cu vedere spre munte

🏨 zonă de aparthotel cu apartamente compacte, de aproximativ 30–40 mp utili, potrivite pentru regim hotelier

🚗 parcare supraterană și subterană pe 2 niveluri

🔐 acces securizat, supraveghere video și videointerfon smart cloud

👨‍👩‍👧 zone de recreere, locuri de joacă și acces fără bariere

🚲 rasteluri pentru biciclete la fiecare bloc

Apartamentele vin în variante de 1, 2, 3 și 4 camere, cu suprafețe de la aproximativ 40 mp până la peste 151 mp, compartimentări eficiente, geamuri panoramice, izolare fonică, fațade termoizolate cu vată minerală și 2 lifturi moderne pe fiecare scară.

Pentru mai multe informații și programări, contactați-ne la 0727 101 106

Citește mai mult

  • Tip apartament
    Apartament
  • Compartimentare
    Semidecomandat
  • Număr camere
    2
  • Dormitoare
    1
  • Număr bucătării
    1
  • Număr băi
    1
  • Etaj
    2
  • Suprafață utilă
    67.73 mp
  • Suprafață construită
    78.49 mp
  • Suprafață totală
    78.49 mp
  • Disponibilitate
    Imediat
  • Orientare
    Est
  • Confort
    Lux
  • Stare interior
    Ultrafinisat
  • Anul finisării
    2026
  • Număr balcoane
    1
  • Imobil
    Bloc de apart.
  • Stadiu construcție
    În construcție
  • An construcție
    2026
  • Construcție nouă
    Da
  • Tip construcție
    Cărămidă
  • Număr etaje clădire
    8
  • Număr subsoluri
    2

Facilități

Apă
Boxă la subsol
Canalizare
CATV
Centrală imobil
Curent
Curte
Curte comună
Debara
Garaj subteran
Gaz
Grădină proprie
Iluminat stradal
Internet
Izolație exterioară
Izolație interioară
Lift
Loc de joacă copii
Magazie
Mijloace de transport în comun
Străzi asfaltate
Telefon
Vedere spre oraș
Dumitru Cojocari - MEGAPOLIS Braşov
Dumitru Cojocari
Real Estate Agent

0727101106


Solicită chiar acum o vizionare
Nume
Telefon
Email
Sună acum Solicită vizionare
Necesare:

Site-ul nu poate funcționa corect fără aceste cookie-uri. Vezi cookie-urile

Statistică:

Strângem statistici anonime despre voi, vizitatorii unici, pentru a vă îmbunătăți experiența dumneavoastră. Vezi cookie-urile

Marketing:

Pentru a ne promova mai eficient serviciile noastre, folosim cookies pentru a vă identifica și a vă oferi proprietăți și servicii personalizate. Vezi cookie-urile

Acest site folosește cookies, află detalii. Alege ce tipuri de cookies dorești să permitem: