ID CP2086559

Apartament 2 camere | Coresi | Predare Iulie 2026

ID CP2086559

124,730 € + 21% TVA

Apartament cu 2 camere de vânzare
Tractorul, Brasov
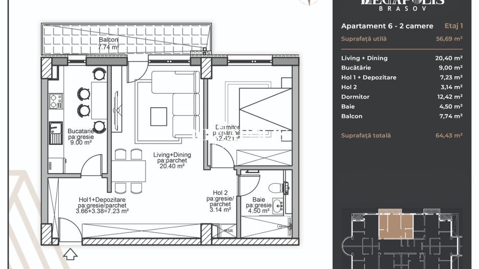
56.69 mp
2024

Apartament 2 camere – Tractorul, Brașov

Suprafață utilă: 56,69 mp

Balcon: 7,74 mp

Etaj: 1

Termen de predare: Vara 2026

Se oferă spre vânzare un apartament modern cu 2 camere, situat într-un ansamblu rezidențial nou din zona Tractorul, Brașov. Localizare excelentă, cu acces rapid către Mall Coresi, transport public, supermarketuri și toate facilitățile urbane necesare.

Compartimentare:

- Living + Dining: 20,40 mp

- Bucătărie: 9,00 mp

- Hol 1 + Depozitare: 7,23 mp

- Hol 2: 3,14 mp

- Dormitor: 12,42 mp

- Baie: 4,50 mp

- Balcon: 7,74 mp

* Aceeași structură este disponibilă pe mai multe etaje, iar orientarea poate varia în funcție de poziționarea fiecărei unități; pentru disponibilități exacte, vă rugăm să ne contactați.

Suprafață totală: 64,43 mp

Locuri de parcare disponibile:

- Parcare subterană: 16.900 EUR + TVA

- Parcare supraterană: 13.900 EUR + TVA

Facilități ale complexului

- Spații verzi și zone de relaxare

- Grădiniță privată în ansamblu

- Parcări subterane și supraterane

Dotări premium

- Izolație exterioară cu vată bazaltică

- Încălzire în pardoseală în tot apartamentul

- Acces securizat și supraveghere video

- Spații comerciale la parter (supermarket, farmacie, salon)

- Videointerfon smart cloud

- Iluminat inteligent în spațiile comune

- Stații de încărcare pentru mașini electrice

- Ecopubele subterane și colectare selectivă

- Rampe de acces pentru persoane cu dizabilități și cărucioare

Pentru detalii și vizionări:

0727 101 109 – Alexandru Bolotovici

Citește mai mult

  • Tip apartament
    Apartament
  • Compartimentare
    Decomandat
  • Număr camere
    2
  • Dormitoare
    1
  • Număr bucătării
    1
  • Număr băi
    1
  • Etaj
    1
  • Suprafață utilă
    56.69 mp
  • Suprafață totală
    64.43 mp
  • Disponibilitate
    Imediat
  • Orientare
    Sud-Est
  • Confort
    Lux
  • Stare interior
    Ultrafinisat
  • Anul finisării
    2026
  • Număr balcoane
    1
  • Imobil
    Bloc de apart.
  • Stadiu construcție
    În construcție
  • An construcție
    2024
  • Construcție nouă
    Da
  • Tip construcție
    Cărămidă
  • Număr etaje clădire
    8

Facilități

Apă
Canalizare
CATV
Curent
Gaz
Iluminat stradal
Internet
Mijloace de transport în comun
Străzi asfaltate
Telefon
Bolotovici Alexandru - MEGAPOLIS Braşov
Bolotovici Alexandru
Manager

0727101109


Solicită chiar acum o vizionare
Nume
Telefon
Email
Sună acum Solicită vizionare
Necesare:

Site-ul nu poate funcționa corect fără aceste cookie-uri. Vezi cookie-urile

Statistică:

Strângem statistici anonime despre voi, vizitatorii unici, pentru a vă îmbunătăți experiența dumneavoastră. Vezi cookie-urile

Marketing:

Pentru a ne promova mai eficient serviciile noastre, folosim cookies pentru a vă identifica și a vă oferi proprietăți și servicii personalizate. Vezi cookie-urile

Acest site folosește cookies, află detalii. Alege ce tipuri de cookies dorești să permitem: